Sold By
- Loading...
- Photos
- Description
Section in Papakura
Exceptional Freehold Section in Opaheke!
- Land: 397m²
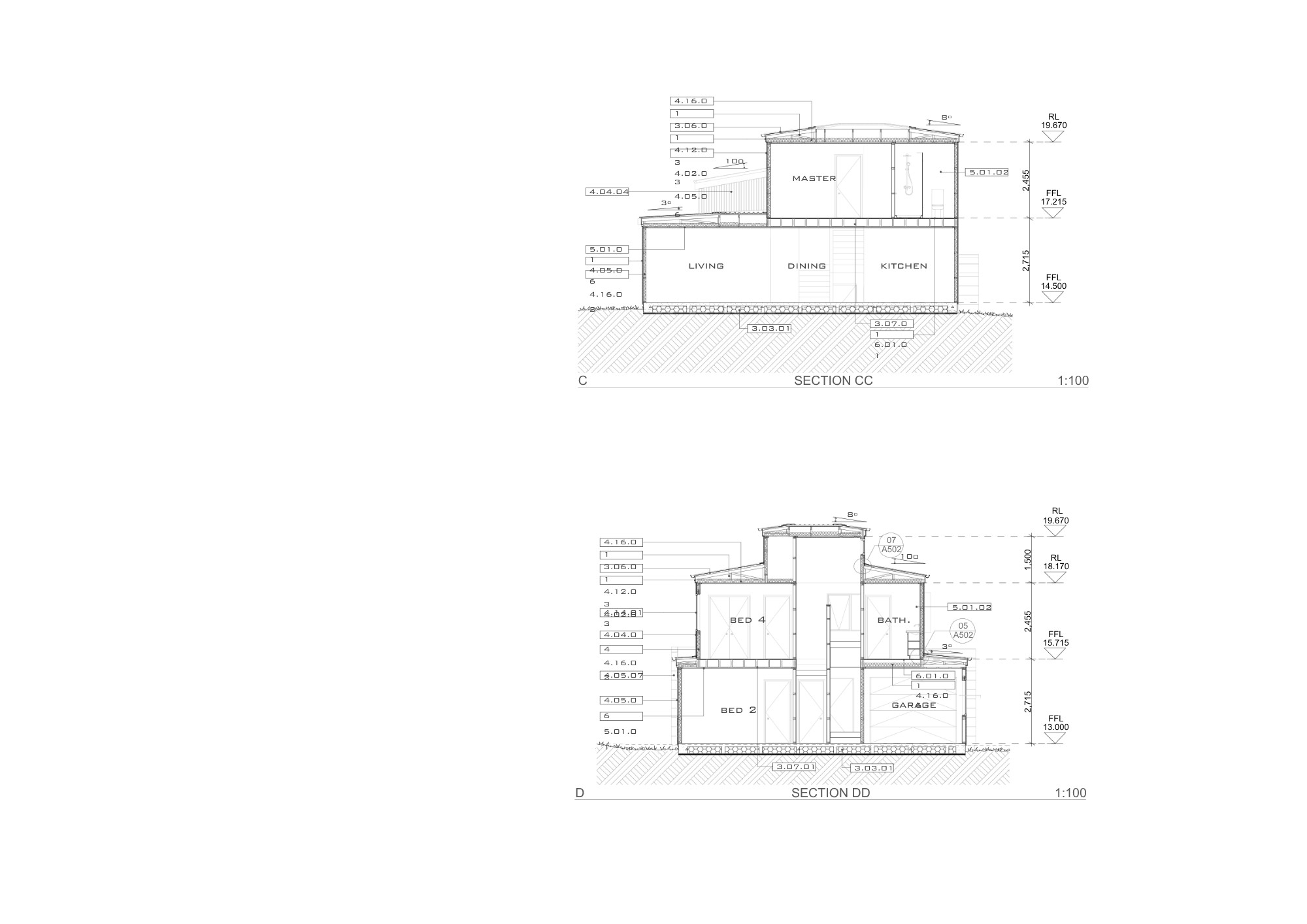
Ready to Build - RC + BC Approved
Welcome to 6 Mulligan Lane, Opaheke, Papakura
Presented by Lucky Singh - Ray White
Unlock the full potential of this 397m² (approx.) freehold section in the growing suburb of Opaheke! With Resource Consent (RC) and Building Consent (BC) already approved, this site is primed and ready for construction - no delays, just build and go.
Property Highlights:
• RC + BC Approved - Start building immediately
• Freehold Section - 397m² (mol), flat and easy to develop
• Sought-After Location - Close to schools, shops, parks, and public transport
• Great Investment - Ideal for developers, builders, or first-home buyers
• Zoning & Title - Freehold title offering long-term security
Whether you're looking to build your dream home or secure a high-potential investment, this property ticks all the boxes.
Contact: Lucky Singh
Phone: 0274 200 007
PLEASE NOTE: Specified floor and land area sizes have been obtained from sources such as RPNZ or Auckland Council (LIM) documents. They have not been measured by the Salesperson or City South Investments 2019 Ltd. We recommend you seek your own independent legal advice if these sizes are material to your purchasing decision.
TKN35452
397m² / 0.1 acres
